Overview

1311 Deadwood Lane
Homesite: #2-2B
$474,990
The Savannah C
Plan
Monthly PI*
/month
Community
South Ranch Southern CollectionCommunity Features
- Parks & Trails
- Gathering Spaces
- Coming Soon: Community Pool
- Coming Soon: Community Clubhouse
Description
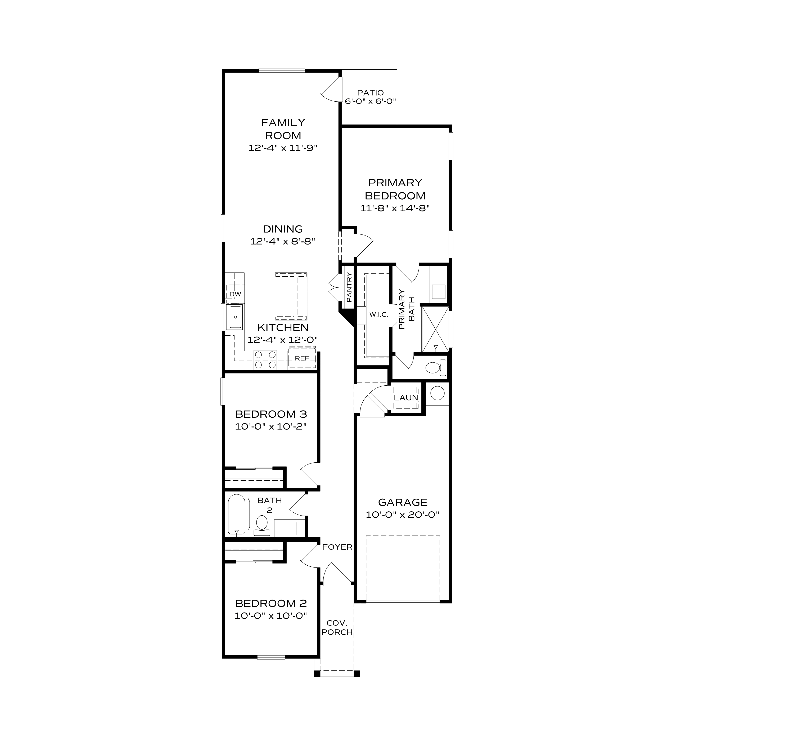
Brand New Construction in Prescott. This single level 2 bedroom plus enclosed study/ 2 bath and 2 car-garage home is in the new Master Planned community of South Ranch in Deep Well Ranch. Future amenities to include pool, pickle ball, hiking trails and barbecue areas. This home is upgraded with a gorgeous design package which includes grey soft-close cabinetry and quartz countertops. Luxury vinyl wood-look plank flooring throughout, stainless appliances in the kitchen and stacked washer/dryer are included in this amazing price!
Floorplan


Jennifer Ring
(928) 833-2639Visiting Hours
Community Address
Prescott, AZ 86305
Davidson Homes Mortgage
Our Davidson Homes Mortgage team is committed to helping families and individuals achieve their dreams of home ownership.
Pre-Qualify NowCommunity Overview
South Ranch Southern Collection
Prescott offers the charm of the Old West with the lifestyle of a boutique mountain town. Our South Ranch community will offer the benefits of suburban living while being just a short drive away from the scenic beauty of Prescott. South Ranch will offer an array of recreational opportunities from parks, and trails, to onsite gathering spaces that foster a sense of togetherness and more! Our incredible community will feature state of the art floor plans designed with your needs in mind. Our homes cater to all families and lifestyles in every stage of life. Whether you are drawn by the allure of outdoor adventures, the historical richness, or the vibrant community life, South Ranch will have it all. Enjoy the best of both worlds, enjoy the tranquility of a small town with the convenience and cultural amenities found in larger cities!
- Parks & Trails
- Gathering Spaces
- Coming Soon: Community Pool
- Coming Soon: Community Clubhouse
- Abia Judd Elementary School
- Granite Mountain Upper Elementary School
- Prescott Mile High Middle School
- Prescott High School
- Prescott School District












