Overview



$364,900
The Mitchell Interior
Plan
Monthly PI*
/month
Community
Forestville Yard TownhomesCommunity Features
- Pool
- Sports Courts
- Community Garden
- Play Lawns
- All Brand New Designs
Description
Davidson Homes is thrilled to introduce The Mitchell!
Step inside The Mitchell, a beautifully designed 3-story townhome that blends style and functionality at every turn. The first floor welcomes you with a charming front porch, private study, spacious foyer, convenient powder room, and an alley-load garage for easy access.
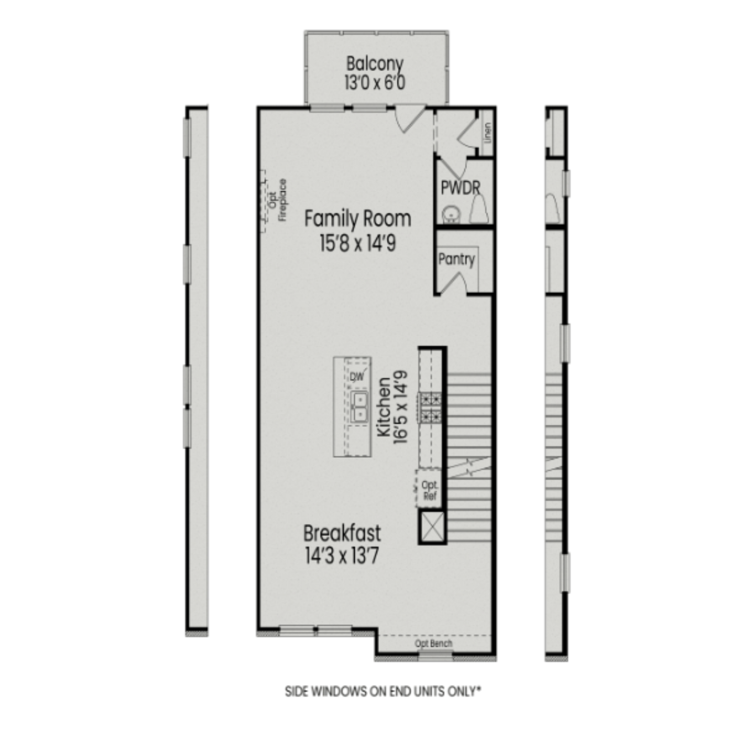
The second floor is the heart of the home, featuring an open kitchen with a large island and pantry, a cozy breakfast area, an expansive family room, and even a balcony—perfect for relaxing or entertaining. Upstairs on the third floor, you’ll find three bedrooms, including a luxurious owner’s suite with an oversized closet, two additional bedrooms, a full bathroom, and a convenient laundry room.
Make The Mitchell your own with personalized upgrades such as a gourmet kitchen, 4th bedroom, or a spa-inspired owner’s suite shower. Call your New Home Consultant to find out how to make The Mitchell yours today!
The floorplans Avery and Mitchell are interchangeable with all elevations, interior and exterior.
Floorplan





Katie Talbo
(984) 207-1870Visiting Hours
Community Address
Knighdale, NC 27545
Davidson Homes Mortgage
Our Davidson Homes Mortgage team is committed to helping families and individuals achieve their dreams of home ownership.
Pre-Qualify NowLove the Plan? We're building it in 1 other Community.
Community Overview
Forestville Yard Townhomes
Welcome to Forestville Yard, a vibrant and welcoming community nestled in the heart of Knightdale, NC. Forestville Yard combines the charm of small-town living with the convenience of proximity to downtown Raleigh, Research Triangle Park and Durham. Crafted for modern living and effortless connection, Forestville Yard offers 7 buildings of all-new 3-story townhomes designed with comfort, style, and community in mind.
Forestville Yard features an array of enticing amenities for residents to enjoy. Dive into the refreshing oasis of our community pool or spend the afternoon playing pickleball on the private courts. Green thumbs and nature enthusiasts will find joy in our community gardens, cultivating a sense of community and providing a serene backdrop for those seeking a connection with nature. Grow your favorite herbs, flowers, or vegetables, fostering a sense of shared responsibility and cultivating a beautiful environment for all to enjoy.
Beyond the community, Forestville Yard offers the best of both worlds – the tranquility of suburban living and the dynamic energy of downtown Raleigh, just a short drive away. Enjoy easy access to the cultural delights, dining experiences, and vibrant entertainment that Raleigh has to offer, making every weekend an opportunity for new discoveries.
Forestville Yard offers more than just homes, it's an opportunity to enjoy a lifestyle where every day is an invitation to live, play, and thrive. Contact us today for more information!
- Pool
- Sports Courts
- Community Garden
- Play Lawns
- All Brand New Designs



